2件
-
2,999万円
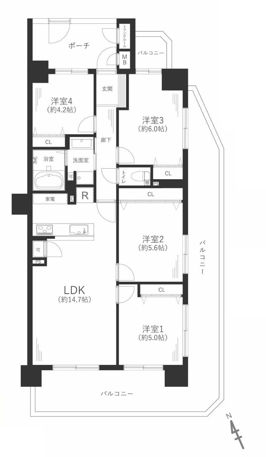
5階 / 76.32㎡ / 4LDK /築25年 /8階建
- エレベーター
- リフォーム済
- バルコニー
- 駐輪場
- システムキッチン
- 温水洗浄便座
宅配ボックスを利用すれば非対面非接触で荷物を受け取れるので、対面での受け渡しに抵抗がある方におすすめです。浴室乾燥機付き物件ならば、浴室や洗濯物からスピーディーに湿気を除去してカビを防げます。利便性の高い角住戸は夏を快適に涼しく過ごす事が可能です。駅から徒歩11分の物件です。不動産購入は人生で一度あるかないかの大きな買い物です。失敗したくないのであれば、経験豊富なプロにお任せください。メールもしくはお電話からご連絡をお待ちしております。
住宅ローンアドバイザー在籍!住宅ローンに不安のある方はお気軽にご相談ください。